30. November 2023
Modernisierte Innenarchitektur für zweistöckiges Headoffice
In wenigen Wochen startet der Umbau des EOC-Headoffice in Cham. 14 Mitarbeiter:innen freuen sich auf eine modernisierte Umgebung mit freundlicher Atmosphäre und dynamischen Arbeitsplätzen.
Autorin
Isabelle D'Angelo
Heller, transparenter, dynamische Arbeitsplätze, reduziert und nicht zu bunt, ein Touch Industrie-Chic, bei der Materialisierung unter anderem Holz berücksichtigen – Der Geschäftsführer der EOC Corporate Services AG hatte bei unserem Erstgespräch im Herbst 2022 bereits klare Interior-Visionen für sein modernisiertes Headoffice.
Seit Anfang der 1990er-Jahre ist die EOC Corporate Services AG, die Schweizer Vertriebseinheit der internationalen EOC Group mit weltweit rund 750 Mitarbeiter:innen, in Cham zuhause. In den vergangenen 30 Jahren wurden auf den anderthalb Etagen und rund 320 Quadratmetern Fläche immer mal wieder kleinere Änderungen in der Innenarchitektur vorgenommen, allerdings ohne einer klaren Gestaltungslinie zu folgen. Die Räume wirkten unstrukturiert und überhaupt in die Jahre gekommen.
Nach dem Kennenlernen setzten wir uns mit den Raumstrukturen, der Raumaufteilung und internen Abläufen auseinander. Das künftige Headoffice sollte selbstverständlich nicht nur ansprechend aussehen, sondern auch eine praxistaugliche und inspirierende Umgebung für 14 Mitarbeiter:innen sein.
Keine Begegnungszonen und wenig Aufenthaltsqualität
Die bisherige Strukturierung bot keinen Raum für Begegnung und keine Möglichkeiten, um gemeinsam Pause zu machen. Die Mitarbeiter*innen teilten sich zu zweit oder zu dritt ein Büro. Die Zugangssituation mit mehreren Eingängen auf zwei Stockwerken war unpraktisch und reduzierte Begegnungsmöglichkeiten.

Etwas, was mir sofort ins Auge fiel, war die ungünstige Lage des Empfangs. Es gab keinen direkten Zugang von aussen und Besucher:innen standen, kaum stiessen sie die Tür nach innen auf, direkt vor der Réception. Die längliche Form des Raumes verunmöglichte eine einladendere Raumsituation, deshalb verschob ich den Empfangsbereich im neuen Layout an eine attraktivere Lage.
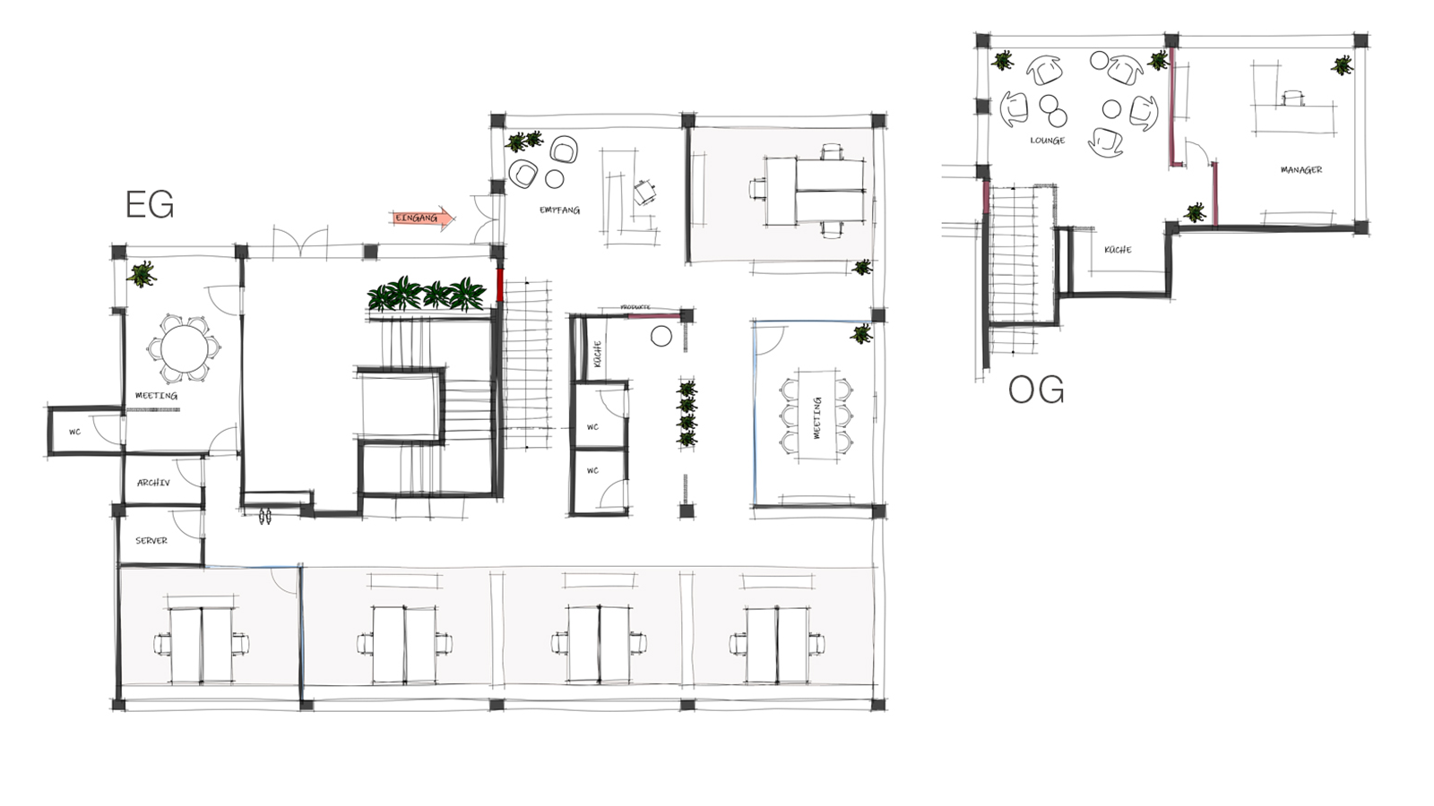
Layout-Option 1 – Die einfachere
Dieser Strukturvorschlag sieht eine Neuorientierung mit neuem, separatem Eingang vor. Hinter dem Empfangsbereich befindet sich ein Meetingraum. Dort, wo vorher die Réception war, gibt es ein kleineres Meetingzimmer mit eigenem Zugang und WC.

Eine grössere Küche und gegenüberliegend eine Aufenthaltszone gehören ebenfalls zum neuen Konzept. Die Arbeitsplätze im Erdgeschoss liegen alle an der hellen Fensterfont. Im Obergeschoss befindet sich das Manager-Büro und ein Einzel- oder Zweierbüro.
Layout-Option 2 – Die aufwändigere
Die zweite Option unterscheidet sich im Wesentlichen durch einen internen Aufgang, welche eine direkte Erschliessung im Kern der Räumlichkeiten erlaubt, ohne das Treppenhaus benutzen zu müssen. Der Serverraum und das Archiv werden versetzt.
Die Arbeitsplätze sind bei diesem Vorschlag ebenfalls im Erdgeschoss an der Fensterfront angedacht. Die Küche mit Sitz- oder Stehmöglichkeiten und ein offener Lounge-Bereich bilden auch hier das Zentrum des Headoffice.
Das Manager-Büro, ein Zweier-Büro und die kleine Küche mit Stehtisch sind direkt durch den internen Zugang ins Obergeschoss zu erreichen.
Im iterativen Prozess zum Ideal-Layout
Nach der Präsentation unserer ersten Ideen analysierten wir mit dem Geschäftsführer und der Office Managerin alle Bedürfnisse. Im fortlaufenden Dialog entwickelten wir die Raumstrukturierung so weiter, bis die ideale Lösung gefunden war. Da bereits am Anfang des Prozesses klar wurde, dass eine Option mit internem Treppenaufang bevorzugt wird, holten wir zeitnah einen Statiker ins Boot. Er prüfte, ob die Idee auch in der Praxis funktionierte – und gab grünes Licht.

Grünes Licht kam auch von den übrigen Mieter:innen des Hauses. Da die EOC Corporate Services AG Stockwerkeigentümerin ist, war aufgrund der zahlreichen baulichen Massnahmen die Zustimmung der anderen Parteien erforderlich.
Helles, warmes und transparentes Interior
Das Farbkonzept der neuen Räume orientiert sich am Logo der EOC Group. Die Arbeitsflächen und Meetingräume werden mit einem gewobenen, grau-blauen Vinyl ausgestattet, die übrigen Räume erhalten einen Vinylboden mit gebürsteter Eichenholz-Optik und Trittschalldämmung. Mittlerweile bestehen solche Imitate aus längeren Riemen mit grösserer Variation des Musters, sodass das Verlegebild wesentlich natürlicher aussieht. Die warme Atmosphäre unterstreichen wir mit abgetönten Wänden, einer Innenbegrünung und Hängeleuchten beim Treppenbereich.
Dem Wunsch nach mehr Durchlässigkeit und Helligkeit sind wir mit halb-transparenten und transparenten Raumtrennern nachgekommen. Wir setzen viel Glas und Regale sowohl mit als auch ohne Rückwände ein. Damit die Privatsphäre trotz aller Offenheit gwährleistet ist, kommen Folien, Lamellen-Vorhänge und Holzsprossen-Wände zum Einsatz. Auch ein Teil des Mobiliars verfügt über entsprechende Features. Dazu gehören Pultkompositionen mit filzigen Trennwänden und Lounge-Sessel mit hohen Rücken- und Seitenteilen.
Mit ausgewählten Elementen erzeugen wir als Kontrast den gewünschten Industrie-Touch. Die Pulte verfügen zum Beispiel über metallige Beine, die Garderobe besteht aus schwarzen Metall-Rohren, der Treppenaufgang erhält ein Metall-Geländer und die Küche im OG wird mit einer glasigen Innenwand mit schwarzen Metallsprossen abgetrennt.
Das künftige Headoffice wird hauptsächlich mit neuem Mobiliar ausgestattet, vereinzelte Objekte wie zum Beispiel Bürostühle und der Meetingraum-Tisch ziehen nach der Renovation wieder ein.
Im Januar 2024 startet der Umbau. Während knapp drei Monaten wird das Team der EOC Corporate Services AG seinen Tätigkeiten an einem anderen Ort nachgehen. Ab Frühjahr ziehen die Mitarbeiter:innen zurück in die renovierten Räumlichkeiten.
Nutzen Sie unsere Design-Expertise für Ihr Innenarchitektur-Projekt
Isabelle D'Angelo
Innenarchitektin
Entdecken Sie weitere Space Stories
Space Story #5 |  29. Mai 2020
Ladenkonzepte nach der Pandemie
Die Corona-Krise wirft unzählige Fragen auf. Auch, wie das Virus unseren Arbeitsalltag künftig beeinflusst: Welche Auswirkungen hat die Pandemie auf Ladenkonzepte? Aufs Hospitality Design? Auf die Gestaltung eines Messestandes? – DOBAS-CEO Patrick Buchecker hat mögliche Szenarien skizziert.
Space Story #8 |  29. Oktober 2020
Mehrwerte für Shop Designs dank Virtual Reality
Fotorealistische Renderings sind heute fester Bestandteil jedes Ladenbau-Projektes. Nun steht mit Virtual Reality (VR) die nächste Generation von Darstellungsmöglichkeiten in den Startlöchern. DOBAS-CEO Patrick Buchecker erklärt, wie VR funktioniert und welche Chancen sich durch die Technik ergeben.
